Fiche_toilette adaptée_Lavabo

Lavabo adapté
La fiche suivante a pour objectif de reprendre les normes relatives à un lavabo adapté ainsi que les éléments autorisés et ceux qui ne le sont pas, afin de garantir le respect des exigences établies. Elle servira de référence pour vérifier la conformité des installations et des usages.
Le lavabo
- Bord supérieur 80 cm : dégagé en dessous
- Profondeur : 60 cm
- Desservi par une aire de rotation
Placer un miroir
- Partie inférieure à 90 cm du sol
- Hauteur de 90 cm minimum
Interdiction d’installer un lavabo dans une toilette trop exiguë
Un lavabo adapté peut être installé dans une toilette adaptée, à condition que l’espace de celle-ci soit suffisamment dimensionné pour permettre son intégration sans compromettre l’accessibilité et la circulation.
Pour les toilettes dont la profondeur est inférieure à 200 à 220 cm, le lavabo devra être installé à l’extérieur de la toilette, dans le sas sanitaire.
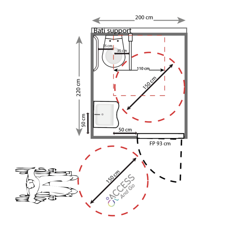
Schéma :
Dimensions minimales pour l’installation d’un lavabo : 200 cm × 220 cm
Même si la pièce est agrandie pour permettre l’installation d’un lavabo, celui-ci ne peut pas être placé de manière arbitraire. Il doit obligatoirement être fixé sur le mur perpendiculaire à la cuvette des toilettes. Le lavabo sera positionné à une distance de 70 cm de la cuvette, tandis que la robinetterie devra être située à 50 cm de l’angle rentrant afin de garantir un usage ergonomique et conforme aux exigences d’aménagement.
Schéma :
Pour permettre l’installation d’un lavabo sur le mur latéral à la cuvette, la pièce doit disposer d’une largeur suffisante afin que le lavabo n’empiète pas sur l’espace réservé à l’aire de transfert.
Le lavabo doit être desservi par une aire de rotation, ce qui implique qu’il doit être installé de façon à être accessible de face pour l’utilisateur. Il ne doit pas être orienté vers la cuvette ou positionné de manière à compliquer l’approche frontale.
Schéma :
Les erreurs à ne pas commettre
Il est interdit de placer le lavabo :
- Dans une toilette trop petite
- Dans l'espace prévu à l'aire de transfert
- Dans l'espace prévu à l’aire de rotation
- Face à la cuvette
Besoin d'aide ?
Des solutions concrètes pour votre établissement
Accessandgo-ABP vous propose un accompagnement personnalisé et des explications claires. De l'audit initial à la mise en œuvre des aménagements, nous sommes votre partenaire privilégié pour des solutions pratiques et conformes.
Prêt à agir pour l'accessibilité ?
La première étape vers un établissement entièrement accessible est simple. Contactez nos experts pour un audit personnalisé et un devis adapté à vos besoins spécifiques. Votre engagement est notre priorité.